
- 金蓝湾项目详情
金蓝湾
- + 项目地址:金杯路与国基路交叉口向北100米
- + 开发单位:河南信基置业有限公司
- + 服务热线:63980111、63980222、63980666/0999
- + 楼盘价格:9000元/平米
- + 交房时间:20111-5-1之前
■楼盘动态
■项目资料
- + 售楼地址:金杯路与国基路交叉口向北100米
- + 物业类别:小户型、
- + 建筑类型:小高层、高层、
- + 主力户型:一居室 | 二居室 | 三居室
- + 绿 化 率:34 %
- + 总建筑面积:156804 平方米
- + 交通状况:28路、93路、22路、T4路、4号地铁
- + 项目介绍:金蓝湾位于金杯路与银河路交汇处,位于素有郑州“后花园”之称的生态北区,紧邻郑大体院,省体育中心、花卉市场、海洋馆环伺左右,坐拥北区丰富自然资源、休闲场所,北环快速道通达快捷,交通便利。周边一系列高档住所,给人高雅、宁静的居住享受。得天独厚的资源优势,上风上水的居住环境,便捷的交通使项目拥有稀缺的居住价值与成长潜力。
金蓝湾由拥有多年开发经验的河南信基置业有限公司与郑州新希望置业有限公司强强联合,雄厚的资金实力和专业的开发能力全力打造北区高尚住宅新标杆。项目总建筑面积16万平米, 6栋18层、4栋13层的高层建筑错落有致,在起伏变化之中勾画曼妙城市天际线。建筑外立面简约、自然、时尚,现代而富有活力,以新都市主义生活社区为规划理念,运用城市现代简约的设计手法和超前的建筑色彩搭配,以人为本,寓情于景,寓景于建筑,尽显华美。
金蓝湾景观设计的主旨为尊重自然,营造可持续发展的概念景观模式,将景观设计与人群活动结合起来,创造有功能内涵的、以人为主的景观空间。园林规划设计中,遵循“以人为本,因势利导”的设计理念,追求在有限的空间里做到景观视觉的多样化和功能化,从日照、季节的变换等细节精心布置绿化景观、园林小品,让您处处触摸到纯正法式浪漫与休闲的文化细节之美。。“春、夏、秋、冬”四个园区的景观设计,小区一年四季不同景致变幻。鲜明的层次感让每户居民享受与众不同的完美景致。园区内绿树簇拥、山泉小溪纵横交错,形成自然的水景园林,它洗尽了都市的浮躁与喧嚣,可提供更丰富的生活品质内涵。人工艺术与自然环境达到共存、共乐、共雅,使您寻找到心灵的平静与安详,令都市的您重拾家园的梦想,用自然、健康和舒适的环境扩展您的心胸,您可以尽情体会自由、安逸、闲适及天人合一的理想生活境界。
数十种24㎡-136㎡的精美户型,采用最大化享受采光、采景的设计,增加舒适度,营造出理想的居住空间。户型设计精巧大方,功能齐全的一居室让您小空间同样畅享大生活;主力户型80㎡二房、110㎡三房舒适的宽厅设计、宽敞生活阳台、多个超大面积花园露台组合成惬意生活,让您在有限的空间里享受无限的居家乐趣。136㎡宽敞三房,纯板式一梯二户纯正大宅享受,方正实用,兼具优好的通风采光。80多平方米的花厅洋房,送10㎡大露台,作为阳光花房还是雅致书房尽可随心所欲。270°落地观景窗让阳光与房间直接对话; 360°全景阳光房让你随时沐浴阳光,与清风私语,尽享天然情趣。
金蓝湾全部选用环保、节能、优质建材,采用新技术、新工艺,并采取多层质量检验、多重施工监控进行现场监理。运用多种现代科技与设备,如周界安防系统、入户可视对讲装置等,竭尽所能为业主提供安全、舒适、现代、人性化的生活空间。
金域蓝湾物业秉承“全心全意全为您”的服务宗旨,以精诚尽力的服务态度、细致入微的品质意识,给业主带来前所未有的尊贵体验。
金蓝湾,金色域地,梦想蓝湾。为具有高品位人生,对生活有着全新理解的成功人士精心打造的,为人们设定一种人人都需要而又无法说出来的崭新生活模式,让人们在这里充分与绿景浅弯融合,找到一种闲适与悠然的生活。
金蓝湾VIP电话:63980666/0999
商铺销售:63980888,招商热线:63980111
■五证信息
- + 国有土地使用证:资料整理中...
- + 建设用地规划许可证:资料整理中...
- + 建设工程规划许可证:郑规建字第410100200929159号
- + 建筑工程施工许可证:资料整理中...
- + 商品房预售许可证:(2012)郑房管预售字第2893号
■户型欣赏
S户型:三室两厅两卫
建筑面积:约 125.39 平方米
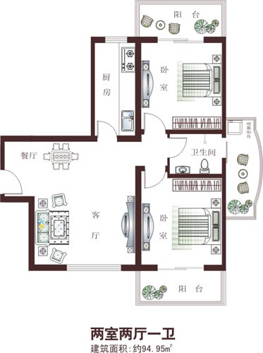
R户型:两室两厅一卫
建筑面积:约 81.72 平方米
Q户型:一室一厅一卫
建筑面积:约 46.53 平方米
P户型:三室两厅两卫
建筑面积:约 151.20 平方米
O户型:三室两厅两卫
建筑面积:约 153.69 平方米