橄榄城
- + 项目地址:二七南三环与石柱路(碧云路)交汇处
- + 楼盘特色:享受的国度
- + 开发单位:郑州亚新房地产开发有限公司
- + 服务热线:63266777/63266888
- + 楼盘价格:6612元/平米
- + 交房时间:2014.10.30
■楼盘动态
■项目资料
- + 售楼地址:南三环与冯庄路交汇处
- + 物业类别:住宅、商铺、小户型、
- + 建筑类型:多层、小高层、小户型、高层、
- + 主力户型:一居室 | 二居室 | 三居室 | 四居室 | 复 式
- + 绿 化 率:35 %
- + 总建筑面积:1350000 平方米
- + 交通状况:215、111、36等
- + 项目介绍:橄榄城总占地面积约900亩(京广路以东、冯庄路以西、端午路以南、南屏路以北),建成后总建筑面积约135万平方米,是郑州南城目前规模最大城中村改造项目。整个项目被分为7个地块开发,其中南三环以北三个地块,南三环以南四个地块。启动区开发南三环以北的三个地块,每个地块容积率分别为1.6,2.0和2.5,综合容积率仅为2.0,橄榄城正在以最适宜生活的尺度,打造中心城区罕有的低密度样板生活。
总体规划上,橄榄城以新国际block街区生活为范本,结合中国人居理念进行社区规划。商业步行街、风情会所、休闲广场、景观组团有机结合,让住区与城市机理相容、与地域文化一脉相传。半围合式的院落规划,营造出开放的交流空间与尊崇的私人领地。
社区风格上,橄榄城引入简约理性的新德式风情。既汲取了欧式风格的沉稳大气,又融入了中原文化的居住精髓。线条洗练、工艺精良、气质理性,立面清新、选材考究,简洁而富秩序感,硬朗中蕴含艺术美。建成后的橄榄城,将以高品质高档次提升郑州南区的城市形象,以高水准高舒适度改变南城人们的生活质量。从而为成为都市魅力的全新代言,为区域居民乃至郑州人民提供多元的、时尚的、现代的生活方式,成为未来城市发展的样板区。
橄榄城社区内及其周边配备商业街、医院、文化活动中心、9所幼儿园、4所小学、1所中学。
橄榄城一期开盘时间:2008-11-01 交房时间:2009-12-01
橄榄城二期开盘时间:2010-4-25 交房时间:2010-5-28
■五证信息
- + 国有土地使用证:资料整理中...
- + 建设用地规划许可证:资料整理中...
- + 建设工程规划许可证:资料整理中...
- + 建筑工程施工许可证:资料整理中...
- + 商品房预售许可证:(2012)郑房管预售字第2974/2993
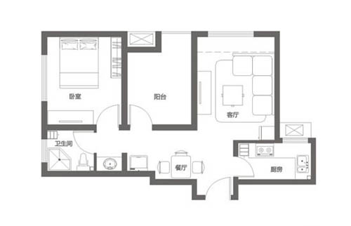
■户型欣赏
橄榄城:1室2厅1卫
建筑面积:约 约60.82平米 平方米
橄榄城:3室2厅1卫
建筑面积:约 约113.6平米 平方米
橄榄城:2室2厅1卫
建筑面积:约 约77.5平米 平方米
橄榄城:4室2厅2卫
建筑面积:约 约146.8平米 平方米
D2-3:三室二厅一卫
建筑面积:约 87.80 平方米