
- 鑫苑国际城市花园2期项目详情
鑫苑国际城市花园2期
- + 项目地址:金水路与棉纺路交叉口向西500米
- + 开发单位:郑州建投鑫苑置业有限公司
- + 服务热线:67723888 67723561
- + 楼盘价格:一房一价
- + 交房时间:2009-08
■项目资料
- + 售楼地址:
- + 物业类别:
- + 建筑类型:多层、小户型、高层、
- + 主力户型:住宅、普通住宅、国际化社区定位的高
- + 绿 化 率:42 %
- + 总建筑面积:400000 平方米
- + 交通状况:11 25 101 104 76路、17路、50路、52路、63路、101路、9路、T4路、35路、Y866路、66路、88路、37路、T5路等30多条公交路线任您选择
- + 项目介绍:鑫苑WEHOUSE国际城项目介绍
3栋公寓面积:83666㎡
楼层:25层
公寓套数:1584户
面积区间:40—55㎡
底商商业配套:24000㎡
国际名仕会所:4000㎡
高档幼儿园
市政小学
=====================
鑫苑国际城市花园位于郑州市第一行政大道金水路旁,坐落与二七商圈与碧沙商圈之间。郑州市重点工程解放路立交桥的兴建,将更使鑫苑·国际城市花园拥有市中心罕有绝版地段,“一桥架双圈,一路通四方”成为鑫苑·国际城市花园的真实生活体验。“源自名家,超越名家”,又一个新样板社区的诞生将使您实现超级居住梦想。
项目占地235亩,规划建筑面积40万平方米;项目整体布局以“一轴、两带、六区”为规划原则,通过错落有致的景观规划格局,创造多元开放、景观均好的园林体系,社区中心景观休闲广场、组团中心绿化及宅间景观小品层层渗透,营造舒适宜人的花园式居住社区。
300米浓荫森林大道,双水系阳光水岸生活,感受生活无限魅力。依托丰盛的餐饮、娱乐、购物、教育、医疗、交通等市政配套,享受生活超级便利;社区大型商业,享受购物零距离;名校教育,让孩子赢在起跑线,高等级会所彰显身份品位;更兼有中心城区罕有双气社区,一经出现就注定了生活的丰盛和产品的稀有。
鑫苑品牌以对人性化居住的不懈追求对建筑精雕细琢。水绕宅而过,宅依水而生,每一扇窗外都是独特的风景。户型自公寓、优雅两房,阳光三房,平层、跃层多种设计,全部采用大面宽、小进深,采光观景,视野更佳,一切皆为风景所致。
主力户型——85、120、137、156、70、31平方
==========================
鑫苑国际城市花园,位于郑州市第一行政大道金水路旁,二七商圈与碧沙商圈之间。郑州市重点工程解放路跨铁路立交桥的兴建,将更使鑫苑·国际城市花园拥有市中心罕有绝版地段,“一桥架双圈,一路通四方”成为鑫苑国际城市花园的真实生活体验。“源自名家,超越名家”又一个新样板社区的诞生,将使您实现超级居住梦想。
鑫苑国际城市花园一期已经全部结束,2期9月开盘
======================
项目占地235亩,规划建筑面积40万平方米;一期25栋多层住宅、其中6栋多层公寓。
一期2006年12月13日交房。
项目整体布局以“一轴、两带、六区”为规划原则,通过错落有致的景观规划格局,创造多元开放、景观均好的园林体系,社区中心景观休闲广场、组团中心绿化及宅间景观小品层层渗透,营造舒适宜人的花园式居住社区。
300米浓荫森林大道,双水系阳光水岸生活,感受生活无限魅力。依托丰盛的餐饮、娱乐、购物、教育、医疗、交通等市政配套,享受生活超级便利;社区大型商业,享受购物零距离;名校教育,让孩子赢在起跑线,高等级会所彰显身份品位;更兼有中心城区罕有双气社区,一经出现就注定了生活的丰盛和产品的稀有。
鑫苑品牌以对人性化居住的不懈追求对建筑精雕细琢。水绕宅而过,宅依水而生,每一扇窗外都是独特的风景。户型自公寓、优雅两房,阳光三房,平层、跃层多种设计,全部采用大面宽、小进深,采光观景,视野更佳,一切皆为风景所致。
楼盘详细信息:
占地面积:15.658公顷,1期6.438公顷
总建筑面积:1期114042.65平方米
总户数:1期多层住宅588户、公寓1216户
总人口:10795人
建筑密度:21.8%
绿化率:40%
车位数:地上车位和地下车库
内部配套:双气入户、重点幼儿园、市政小学、超级临街商业、国际标准室内恒温游泳馆、4000㎡国际生活文化中心
周边配套:二七商圈、碧沙商圈、北京华联、金博大、丹尼斯商场、苏宁电器、中原商贸城、人民公园、碧沙岗公园;
.
开发商简介:
郑州建投鑫苑置业有限公司是由郑州市建设投资总公司和河南鑫苑置业有限公司为主要股东出资成立的房地产开发企业。郑州市建设投资总公司是郑州市政府独资兴建的综合性投融资机构。是郑州市政府基本建设项目的主要投资主体和融资平台,拥有40多亿元的优良资产。河南鑫苑置业有限公司是河南最具品牌和美誉度的房地产开发企业,在2003-2005连续三年稳居郑州市住宅市场份额第一名。旗下的人居样板社区鑫苑名家、鑫苑·都市领地、鑫苑·中央花园,销售速度持续攀高,创造了一个又一个中原楼市的热销奇迹。
超强的资金实力与品牌实力的结合,将使郑州建投鑫苑置业有限公司成为又一支房地产行业的生力军,公司将秉承“让城市更美丽,让生活更美好”的企业使命,快速实现“成为河南一流房地产开发企业,持续创造一流的企业价值”的企业愿景,为中原人民建设更多的住宅典范社区。
占地面积:15.658公顷,1期6.438公顷
31-71平方米社区旺铺清盘抢购,首付6万余元,收获精英旺铺无限未来。
一期户型:一室一厅、两室一厅、两室两厅、三室二厅、复式二室二厅、三室二厅、四室二厅
■五证信息
- + 国有土地使用证:资料整理中...
- + 建设用地规划许可证:资料整理中...
- + 建设工程规划许可证:资料整理中...
- + 建筑工程施工许可证:资料整理中...
- + 商品房预售许可证:(2007)郑房管预售字第2020号;(2007)郑房管预售字第2002号(2006)郑房
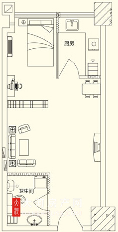
■户型欣赏
高层B+B:小户型
建筑面积:约 78.9 平方米
高层C:小户型
建筑面积:约 42 平方米