
- 东方观天下 项目详情
东方观天下
- + 项目地址:中牟县商都大道和广惠街交叉口西50
- + 开发单位:河南省招商置业有限公司
- + 服务热线:62166068/6
- + 楼盘价格:4800元/平米
- + 交房时间:预计11年底
■项目资料
- + 售楼地址:商都大道和广惠街交叉口西50米
- + 物业类别:住宅、
- + 建筑类型:高层、
- + 主力户型:二居室 | 三居室
- + 绿 化 率:37 %
- + 总建筑面积:30000 平方米
- + 交通状况:郑州新东站到中牟5分钟一班城际公交,郑开大道到项目大概6公里。在建轻轨,BRT、6路、7路公交
- + 项目介绍:东方观天下位于商都大道和广惠街交叉口西50米,县政府对面,文化广场西侧,由河南省招商置业有限公司开发建造。
东方观天下项目规划5栋高层住宅,建筑面积约为3万平方米,有89.8-129.4平米二房到三房户型。小区建成之后的容积率为3.4,绿化率为36.9%。
此外,东方观天下独家引入太阳能路灯公共照明系统,彩铝双玻中空窗、外墙外保温等环保节能建材。
东方观天下预计2011.10左右交房
■五证信息
- + 国有土地使用证:资料整理中...
- + 建设用地规划许可证:资料整理中...
- + 建设工程规划许可证:资料整理中...
- + 建筑工程施工许可证:资料整理中...
- + 商品房预售许可证:资料整理中...
■户型欣赏
东方观天下C1户型 :3室2厅1卫
建筑面积:约 118.00㎡ 平方米
东方观天下B1户型 :2室2厅1卫
建筑面积:约 89.80㎡ 平方米
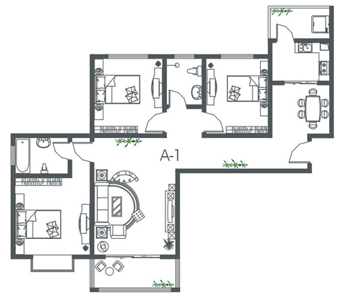
东方观天下A1户型 :3室2厅2卫
建筑面积:约 115.40㎡ 平方米