领峰
- + 项目地址:二七京广路与长江路交汇处
- + 开发单位:郑州海豫置业有限公司
- + 服务热线:68856666/68189999
- + 楼盘价格:5200元/平米
■楼盘动态
■项目资料
- + 售楼地址:京广路与长江路交汇处东北角
- + 物业类别:住宅、公寓、商铺、小户型、
- + 建筑类型:高层、其他、
- + 主力户型:一居室 | 二居室 | 三居室 | 其 他
- + 绿 化 率:30 %
- + 总建筑面积:130000 平方米
- + 交通状况:B16、906、62、561、603、219、213等多路公交车可通达市区各个区域
- + 项目介绍:领峰位于京广路与长江路交汇处,是由郑州海豫置业有限公司投资开发的,占地34余亩,建筑面积为13万平方米,近3万平方的商业体量,住宅高34层。
领峰小区的容积率4.3,绿地率30%。领峰户型自由属于零居设计,开放式厨房、开放式客厅,有30-100㎡的各种户型。领峰小区物业公司是郑州海豫置业有限公司,物业费1.60元/平方米·月。
领峰开盘时间 2010-05-29 预计入住时间 2012-03-01
■五证信息
- + 国有土地使用证:资料整理中...
- + 建设用地规划许可证:资料整理中...
- + 建设工程规划许可证:资料整理中...
- + 建筑工程施工许可证:资料整理中...
- + 商品房预售许可证:资料整理中...
■户型欣赏
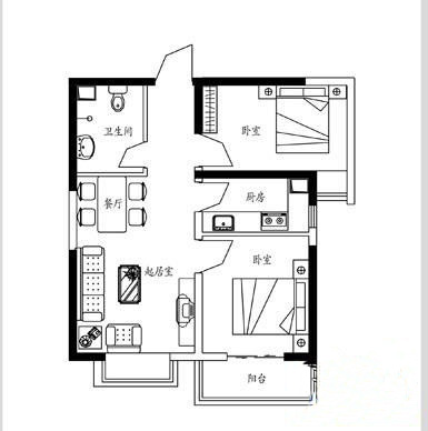
领峰一期B2户型 :2室2厅1卫
建筑面积:约 77.74㎡ 平方米
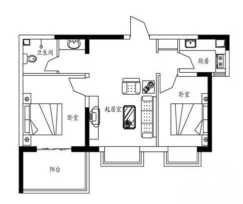
领峰一期C3户型 :2室2厅1卫
建筑面积:约 91.93㎡ 平方米
领峰一期A5标准间户型 :1室1厅1卫
建筑面积:约 36.88㎡ 平方米