
- 上上国际中心项目详情
上上国际中心
- + 项目地址:郑东新区郑东新区心怡路与福禄路交汇处
- + 开发单位:河南上上置业有限公司
- + 服务热线:86606666
- + 楼盘价格:18000元/平米
■楼盘动态
■项目资料
- + 售楼地址:东风南路与商都路交叉口北50米
- + 物业类别:商铺、写字楼、
- + 建筑类型:写字楼、
- + 主力户型:
- + 绿 化 率:31 %
- + 总建筑面积:106000 平方米
- + 交通状况:乘坐123路、K115路、114路、43路等到金水东路东风东路下
- + 项目介绍:上上国际中心位于郑东新区心怡路与福禄路交汇处东南,距位于高铁西出站口南1.5公里,约19亩。东临和谐路,西临心怡路,北侧为福禄路,南接20亩市政绿地。
上上国际中心是由上上集团投资兴建的以办公为核心,集商业、金融、会议、服务业为一体的综合性项目。
上上国际中心项目总建面积约10.6万㎡,总高度近120米,地上24层,地下2层,总户数252户,绿地率30.85%,机动停车位698辆。
■五证信息
- + 国有土地使用证:资料整理中...
- + 建设用地规划许可证:资料整理中...
- + 建设工程规划许可证:资料整理中...
- + 建筑工程施工许可证:资料整理中...
- + 商品房预售许可证:资料整理中...
■户型欣赏
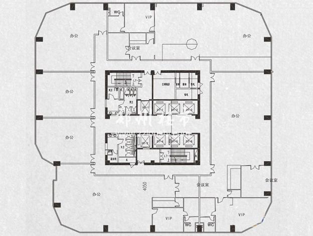
标准层(高区)平面图
建筑面积:约 3373.00 平方米
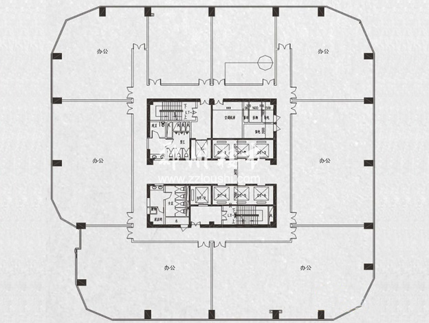
标准层(低区)平面图
建筑面积:约 3373.00 平方米