风和日丽新领地
- + 项目地址:中原中原区西站路冉屯东路交叉口
- + 楼盘特色:公园地产,经济住宅
- + 开发单位:河南康隆置业有限责任公司
- + 服务热线:67518111/67518222
- + 楼盘价格:22000元/平米
- + 交房时间:2013年10月
■楼盘动态
■项目资料
- + 售楼地址:西站路冉屯东路交叉口
- + 物业类别:住宅、公寓、
- + 建筑类型:多层、小高层、小户型、高层、板楼、塔楼、
- + 主力户型:70-130平户型
- + 绿 化 率:32 %
- + 总建筑面积:154820 平方米
- + 交通状况:B1、B10、B13、B12、68、76、128、216、212
- + 项目介绍:风和日丽新领地位于中原区西站路与冉屯东路交叉口,是由河南康隆置业有限责任公司开发的大型双气住宅项目,总占地面积70亩,建筑面积154820平方米。
新领地是一个现代都市生活、亲情绿色家园,是一个倡导亲情回归和邻里关怀的高档社区。
新领地项目一共开发11栋楼,1195户,以70-130平户型为主。
■五证信息
- + 国有土地使用证:资料整理中...
- + 建设用地规划许可证:资料整理中...
- + 建设工程规划许可证:资料整理中...
- + 建筑工程施工许可证:资料整理中...
- + 商品房预售许可证:资料整理中...
■户型欣赏
61#B12户型:二室一厅一卫
建筑面积:约 74.57 平方米
61#B11户型:两室两厅两卫
建筑面积:约 123.32 平方米
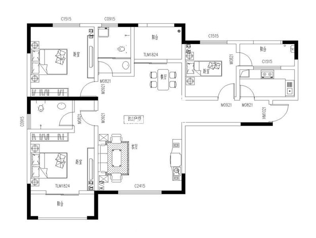
60#A23户型:两室两厅两卫
建筑面积:约 123.17 平方米
60#A22户型:二室一厅一卫
建筑面积:约 87.43 平方米
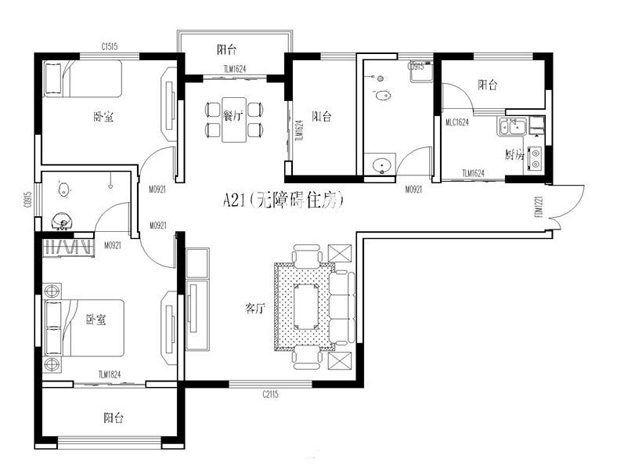
60#A21户型:两室两厅两卫
建筑面积:约 119.13 平方米